本文へスキップ

移住・田舎暮らし・古民家のご相談は

電話でのお問い合わせは026-293-4889

〒388-8007 長野県長野市篠ノ井布施高田68-9

detail物件詳細

私のアナザースカイ


※画像クリックで拡大


気分が爽快ですね

内装1

警鐘台が目印です

内装2

ここから先が敷地です

内装3

母家のお目見え! そして・・

内装3

振り返ればアルプス!

内装3

と〜っても良い雰囲気です

内装3

それでは早速

土間が広いです!

奥からはこんな感じ

まずはこちらから

居間ですね

外を見れば向日葵が

奥へ行ってみましょう

12.5畳と10畳の続き間です

冠婚葬祭はこちらで


角度を変えて


土間の正面の摺りガラス


のぞいてみましょう


こちらにも居間です


隣には


キッチでした!


そうするとこちらは・・


あっ!


お風呂でした!


そして


安定の2つ


2階へ行ってみましょう


作業場にも物置にも


明るくていいですね


景色がまた素敵です

 
ちょっと休憩


そうだ、奥へ進むと


土蔵です


入口はあちら


スッキリしていますね


そうそう、向日葵の向こうは


丁度よい畑がありますよ!


素敵な場所です


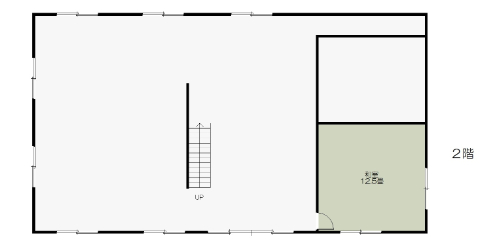
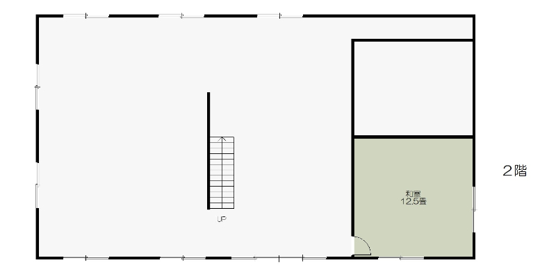
間取図 1階


間取図 2階




物件概要

価格 280万円 都市計画 都市計画区域外
取引態様 媒介 用途地域 なし
権利 所有権 建ぺい率/容積率 なし
所在地 上水内郡小川村大字稲丘 設備  上水道 公営水道
交通 最寄駅 安茂里駅〜約27q  下水道 簡易水洗
 IC  長野IC〜約32q  ガス プロパン
土地   面積 863.34u  電気 中部電力
 内訳  宅地 601.34u
畑 242u
雑種地 20u
備考
※農地付きの為、農業委員会の許可を取得できる方
 が対象です。
※水洗化する場合は浄化槽の設置可
建物   延床面積 276.85u
 構造 木造亜鉛メッキ鋼板葺
 建築年 大正10年
物件資料ダウンロード
(Property material download)
 →お問い合わせ


物件詳細 - 信州田舎暮らし株式会社