物置もあります〜
庭園もございます〜
東側より
ゆったりした敷地です〜
池もございます〜
いきなり失礼します〜
玄関もゆったりしています〜
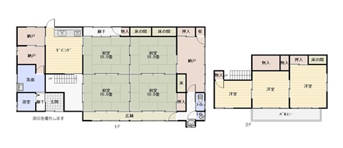
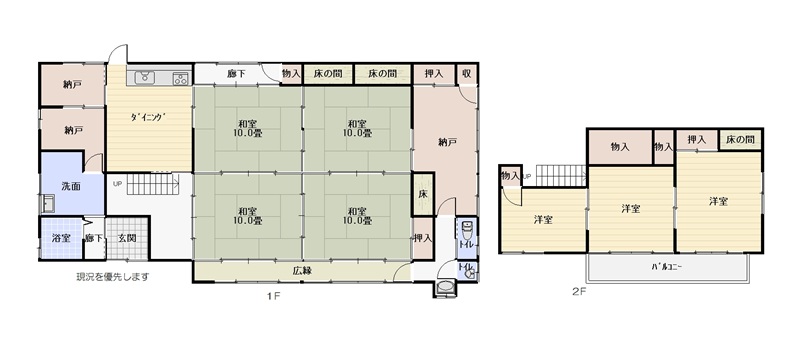
10畳間!
同じく10畳間!
ゆったりした間取ですね〜
歴史を感じます
田の字型です〜
2階の洋室@
| 価格 | 380万円 | 都市計画 | 都市計画区域外 | ||
|---|---|---|---|---|---|
| 取引態様 | 媒介 | 用途地域 | ━ | ||
| 権利 | 所有権 | 建ぺい率/容積率 | ━ |
||
| 所在地 | 長野市篠ノ井有旅 | 設備 | 上水道 | 公営水道 | |
| 交通 | 最寄駅 | 篠ノ井駅〜車で約15分 | 下水道 | 下水道 | |
| IC | 更埴IC〜車で約20分 | ガス | LPガス | ||
| 土地 | 面積 | 2340.06u | 電気 | 中部電力 | |
| 内訳 | 宅地300.06u 畑1842u 山林198u |
備考 ※分筆予定の為、宅地の面積に若干の変動があります ※スーパー・コンビニ・〒・ホームセンターへ車で約15分 ※小学校へ約800m・茶臼山動物園へ約1q ※井戸あり |
|||
| 建物 | 延床面積 | 223.16u |
|||
| 構造 | 木造2階建 |
||||
| 建築年 | 築年不詳 | ||||
| 物件資料ダウンロード (Property material download) |
|||||
| →お問い合わせ | |||||